квартира в новостройке 23,30 м2 по ул. проспект Куприна 36 к1 за 6838727 руб.

Адрес
Адрес проспект Куприна, 36 к1
Описание
Цена 6 838 727 р. (293 508 р./м2)
Подать заявку на ипотеку
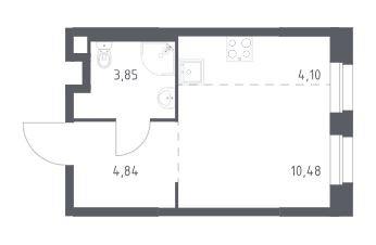
Этаж 10
Этажность дома 19
Общая S, м2 23,30
Жилая S, м2 10,50
S кухни, м2 4,10
СКИДКА 25% ❗ Квартира с ремонтом 💰 Все виды ипотеки, сертификаты. 🏠 «Эко Бунино» — жилой комплекс в Новой Москве, полностью готовый для жизни: переехать можно сразу после покупки квартиры. Уже построены школа и детские сады, открыты ледовая арена и магазины. Рядом — 2 станции метро и 3 лесопарка для прогулок. Вы получите московскую регистрацию, столичные льготы и социальные выплаты. ✅ B продаже квартира студия S - 23,3 кв.м. ✅ ОТДЕЛКА - без отделки ✅ ИНФРАСТРУКТУРА Всего 20 минут на машине отделяют квартал от живописных просторов Валуевского, Ульяновского и Бутовского лесопарков. Чтобы отдохнуть у воды, достаточно прогуляться до реки Сосенки: дорога займет 5 минут. На границе с проектом — лес, где можно собраться на пикник. В квартале уже открыт первый детский сад на 200 малышей, в будущем откроется второй. Также запланировано открытие школы и двух учебно-воспитательных комплексов, в каждом из которых — начальная школа и дошкольное отделение. Первый учебно-воспитательный комплекс уже построен и откроется в ближайшее время. На территории — все для отдыха и шопинга: магазины, кафе, пекарни. Любителей спорта ждет ледовая «Самолет Арена», где можно профессионально освоить фигурное катание или просто покататься по идеальному покрытию площадью 1800 м². Во дворах-парках, закрытых от машин, комфортно и безопасно гулять. Ребенок любого возраста найдет увлекательное занятие в уже готовом плейхабе с большой горкой в виде слона и уникальным игровым оборудованием. Пока дети играют, родители могут прогуляться по бульвару или отдохнуть под навесом из растений. ✅ РАСПОЛОЖЕНИЕ Жилой комплекс расположен в 8 км от МКАД – дорога до магистрали займет всего 13 минут на машине. До центра Москвы также легко добраться на метро. Экотропа соединяет «Эко Бунино» со станцией метро «Коммунарка» — прогулка занимает 20 минут. Другая ближайшая станция — «Ольховая» — находится в 8 минутах на общественном транспорте. Автобусная остановка — в 200 метрах от домов. ✅ ПОКУПАТЕЛЮ: - Бесплатное сопровождение сделки; - Любая форма расчета (рассрочка, ипотека, сертификаты); - Гарантия юридической чистоты сделки -214ФЗ; РАБОТАЕМ ДЛЯ ВАС С ЗАБОТОЙ И БЕЗ КОМИССИИ! id: 30383
Квартира в новостройке в Санкт-Петербурге
Дата 01.07.2025 23:27:13
Объявление № 22716084
Дата подачи:
2 июля 2025 г. 3:27
Дата обновления:
2 июля 2025 г. 3:27
Просмотров 21 Хотите продать быстрее?

Продавец
Агентство недвижимости:
Андреева Ирина Сергеевна
email: 89225397055avega@gmail.co m
Показать номер телефона
Пожаловаться
Комментарии:
Добавить